Tin chung


Hỗ trợ tạo tài khoản cho thành viên mới, Zalo 0344117898 Tú

Tin chung


Hỗ trợ tạo tài khoản cho thành viên mới, Zalo 0344117898 Tú

Tác giả Chủ đề: Hà Tĩnh (Thạch Hà) - NNMU38 - Hai bà cháu Vũ nghèo và bệnh tật  (Đã xem 13300 lần)

0 Thành viên và 1 Khách đang xem chủ đề.

Ngủ rồi VânKiêuSa

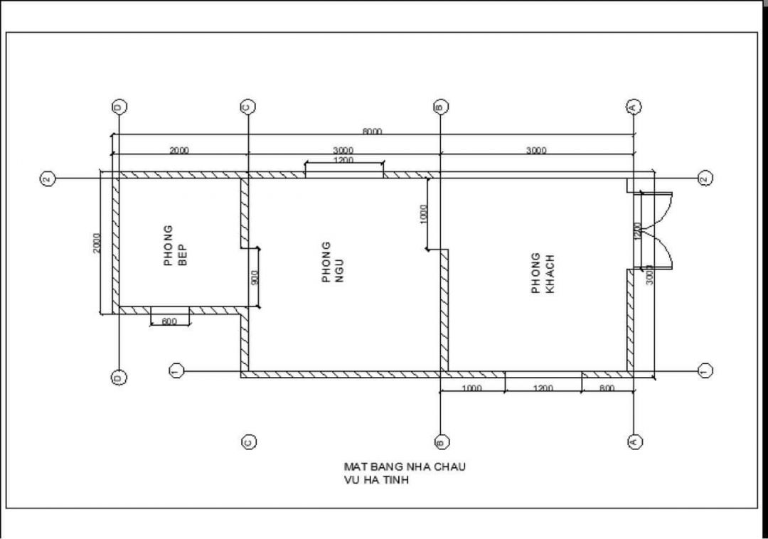
Chào cả nhà
VKs xin cập nhật dự toán, thiết kế  và nhân sự chương trình NNMU số 38
- Nhân sự
1 Quẩn lý chung: Vân Kiêu Sa- ĐT 0911.340.877
2. Giám sát công trình:
Dũng Nguyễn( chuyên mảng xây dựng): 0915.116.977
Hùng Quốc Nguyễn: 0913.310.651
Hoàng Trương( chuyên mảng thiết kế xây dựng): 0915.580.003
3. Thủ quỹ: Vân Kiêu Sa: ĐT 0911.340.877
4. Cập nhật thu chi: Tí Hoài 0982.361582
5. Mua vật liệu
Dũng Nguyễn: Quý Nguyễn
Dự kiến ngày khởi công: ngày 19/12/2021
Cảm ơn cả nhà đã quan tâm và đồng thuẫn để NNMU số 38 được thực hiện
Thân
« Sửa lần cuối: 13-12-2021 19:19:21 gửi bởi phuclehuu »

 
The following users thanked this post: ThaiDzuy, banbe6x, Tieuhuongduong, maitramtg


Ngủ rồi ThaiDzuy

  • Moderator
  • Người Tôi Cưu Mang
  • *****
  • Bài viết: 4.257
  • Thanked: 4480 times
  • Thích 15
  • Giới tính: Nam
Chào cả nhà,

BQT đồng thuận xây dựng NNMU38 cho hai bà cháu, cháu Vũ. Nhóm NTCM Hà Tĩnh vui lòng gửi thiết kế, dự toán ngôi nhà luôn nhé.

Đồng thời thông báo khung nhân sự cho chương trình, dự kiến ngày khởi công!

Thân mến,

ThaiDzuy

Từ đây người biết thương người...
 
The following users thanked this post: banbe6x, Tieuhuongduong, VânKiêuSa, maitramtg, Lắng nghe lòng bạn


Ngủ rồi VânKiêuSa

Chào cả nhà
Ngày cuối tuần nhóm HT Vân Kiêu Sa, Hùng Quốc Nguyễn và O Quý Nguyễn  lại lần nữa về thăm lại gđ bà cháu cháu VŨ, trong túp lều của bà cháu, bà đi viện mới về được mấy hôm nay, hoàn cảnh bà cháu thì có lẽ chúng ta đều bít qua những lần nhóm HT trao CMTX hơn một năm qua
Gia cảnh khó khăn, bố cháu không được bình thường, mẹ bỏ đi khi cháu đang rất nhỏ, bà nội lại đau yếu thường xuyên. Trong căn nhà lụp xụp tường vôi đã bắt đầu có hiện tượng mục nát vì xây bằng gạt đất, đến cánh cửa để đón cũng đã mục nát,không thể đóng được nữa vì tôn cũng đã set rỉ, cuộc sống của hai bà cháu hết sức khó khăn, nay dich bệnh lại càng khó khăn hơn, bà lại thường xuyên ốm đau không người chăm sóc
Với mong ước có một mái nhà để nhỡ đến lúc nào đó không may bà về với tổ tiên thì bé Vũ còn có chổ để ở, nỗi lo lớn nhất trong bà là rồi đây căn nhà nhỡ đến giai đoạn mục nát thì bà cháu không còn chổ trú nắn trú mưa
Qua đồng hành cùng bà cháu trong hơn một năm qua, thấu hiểu được hoàn cảnh và sự khó khăn nên nhóm HT xin đề xuất xin được thực hiện NNMU tăng cho bà cháu cháu Vũ
Rất mong nhận được sự quan tâm, đồng ý từ BQT cùng các MTQ để bà cháu cháu Vũ có được một căn nhà nhỏ như nguyện vọng
Thân
« Sửa lần cuối: 11-12-2021 08:38:22 gửi bởi phuclehuu »

 
The following users thanked this post: ThaiDzuy, banbe6x, Tieuhuongduong, maitramtg, Kiều Xuân Trường Trường


Ngủ rồi Kiều Oanh Nguyễn

Chào cả nhà
Đồng hành cùng hoàn cảnh cháu Vũ từ tháng 08/2020 đến nay, như cả nhà đã biết trong bài viết của chị Vân Kiêu Sa và xác minh của các anh chị nhóm HT và cũng được sư hỗ trợ của các MTQ trong hơn một năm qua
Cháu Vũ sinh ra thì mẹ bỏ đi, bố cháu không được bình thường nên bà nôi đành phải bất đắc dĩ vừa làm cha vừa lam mẹ của cháu, nhưng bà nội cháu lại rất yếu, cứ năm bữa nữa tháng bà lại đi bệnh viện, và mới đây nhất cuối tháng 10 bà fai nhập viện vì bênh
Hai bà cháu sống trong một túp lều cũng không rõ là làm từ lúc nào nhưng như em nhìn thấy tường được xây bằng gạch đất( gạch táp lô) ở địa phương làm thủ công) không da trát vì vậy qua bao mưa nắng đã đến thời gian nó mục, căn phòng khoảng được 10m2 chỉ đủ kê một chiếc giường và để ít đồ dùn của 2 bà cháu, thỉnh thoảng bố cháu về thì 3 con người sống trong túp lều đó
Gọi là nhà cho có nhà, nhưng đứng trong nhà nhìn lên mới thấy được nỗi khổ của bà cháu, nằng thì rọi xuống, mưa thì có tất cả thau chậu, nồi niêu đều phải mang ra để hứng nước, trong nhà ngoài trời gần như nhau, đến cánh cửa cũng không thể lành lặn để đóng lại mỗi tối khi bà cháu ở trong nhà
Nay bà tuổi cao sức yếu,bà giờ cũng đã như ngọn đèn cạn dầu, mong ước duy nhất là có một mái nhà để bà cháu có nơi ở và đê sau này bà có mất thì cháu Vũ cũng có một mái nhà để ở
Kiều Oanh và nhóm HT cũng mong BQT, Các MTQ quan tâm và hỗ trợ cho bà cháu cháu VŨ có một mái nhà như mong ước
Thân

- Link bài viết CMTX cháu Vũ
https://nguoitoicuumang.com/index.php?topic=89794.0

« Sửa lần cuối: 03-12-2021 22:45:55 gửi bởi Kiều Oanh Nguyễn »

Kiều Oanh
 
The following users thanked this post: ThaiDzuy, phuclehuu, maitramtg, Lắng nghe lòng bạn